Concord, ON40 North Rivermede Road
Size: 61,707 sq.ft
Property Type & Status:
Industrial    |   For Lease
1available
Listing
Banner - 40 North Rivermede.jpeg
description
Intersection: North Rivermede Road and Langstaff RoadLocated in a suburban industrial park on the southwest corner of Langstaff Road and North Rivermede Road. Minutes away from Highway 407 and Highway 400. Major intersection: Langstaff Road and Dufferin Street in the City of Vaughan.
Total # of Units: 17
Avail-able
Units
Available Units preview images
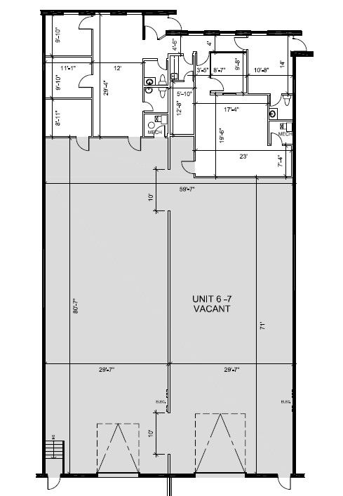
Units 6-7
Total Area: 6602 sq.ft.
Operating Cost: $3.88 per sq.ft.
Realty Taxes: $1.64 per sq.ft.
Types: Industrial  
Demo-graphics
Average Household Income Benchmark (for Ontario): $106,524.04
(Source: Environics Analysis, Demostats 2023)
site plan
Site Plan Image
Expand Icon
inquiry

* Required Field

Contact Leasing
Vivian VooSenior Director of Leasing
Get more info

Interested in this Condor location?
Please fill out the form to contact and let us know.

Download Brochure

Get information of this properties in details.

Contact Leasing