Woodbridge, ONParkette Plaza205-211 Marycroft Avenue
Size: 56,145 sq.ft
Property Type & Status:
Office &   Retail    |   For Lease
1available
Listing
CD_205_211_Marycroft_Cover.jpg
description
Intersection: Marycroft Avenue & Highway 7Busy commercial area. 
Total # of Units: 20
Avail-able
Units
Available Units preview images
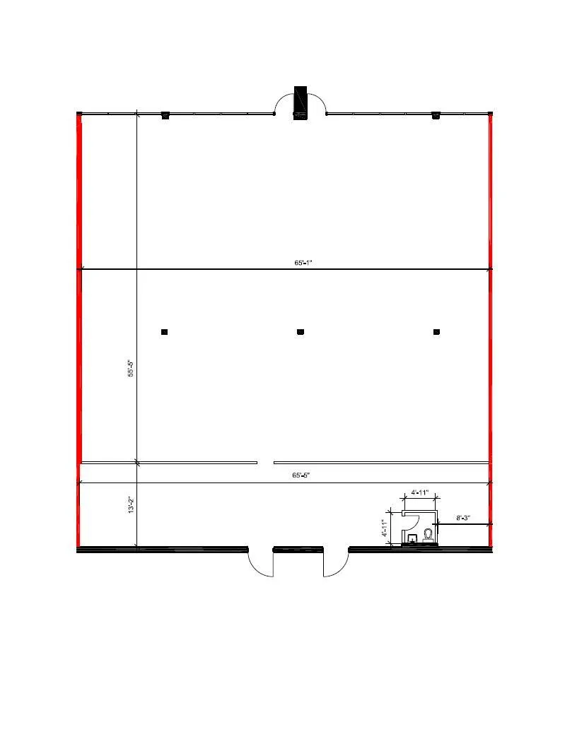
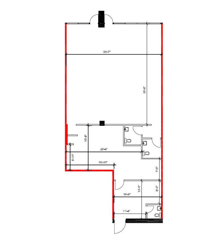
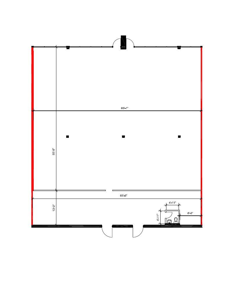
Unit 5
Total Area: 2,432 sq.ft.
Operating Cost: $9.40 per sq.ft.
Realty Taxes: $4.81 per sq.ft.
Types: Retail  
Demo-graphics
Average Household Income Benchmark (for Ontario): $126,953.18
(Source: Environics Analysis, Demostats 2023)
site plan
Site Plan Image
Expand Icon
inquiry

* Required Field

Contact Leasing
Vivian VooSenior Director of Leasing
Get more info

Interested in this Condor location?
Please fill out the form to contact and let us know.

Download Brochure

Get information of this properties in details.

Contact Leasing