Richmond Hill, ON 25 Kinnear Court
Size: 48,025 sq.ft
Property Type & Status:
Industrial    |   For Lease
1available
Listing
Banner - 25 Kinnear.jpeg
description
Intersection: Highway 7 and Leslie StreetLocated in a suburban industrial park on the northeast corner of West Wilmot Street and Kinnear Court. It is located north of Highway 7 and east of West Beaver Creek Road. Minutes away from Highway 404.
Total # of Units: 5
Avail-able
Units
Available Units preview images
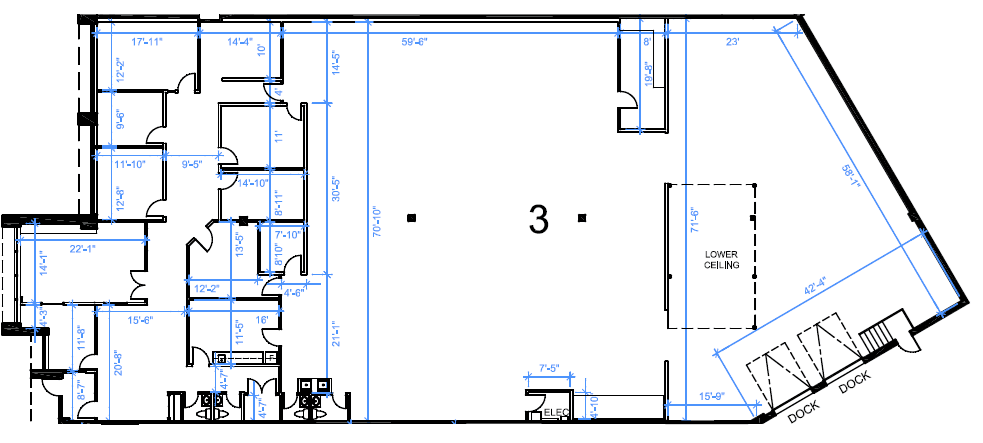
Unit 3
Total Area: 10527 sq.ft.
Operating Cost: $5.51 per sq.ft.
Realty Taxes: $1.71 per sq.ft.
Types: Industrial  
site plan
Site Plan Image
Expand Icon
inquiry

* Required Field

Contact Leasing
Vivian VooSenior Director of Leasing
Get more info

Interested in this Condor location?
Please fill out the form to contact and let us know.

Download Brochure

Get information of this properties in details.

Contact Leasing